Zum Hauptinhalt springen Zur Suche springen Zur Hauptnavigation springen

Zehnder ComfoAir 160 Enthalpie Komfort-Lüftungsgerät

Durchschnittliche Bewertung von 5 von 5 Sternen

Bewertungen
Herstellernummer: 471218230

ComfoAir 160 von Zehnder

Das zentrale Lüftungsgerät ComfoAir 160 von Zehnder wurde für den Einsatz im Wohn- und Gewerbebau konzipiert. Es sichert optimale Raumluftverhältnisse in Kombination mit einer intuitiven Bedienung und höchster Energieeffizienz.

Vorteile des ComfoAir 160 auf einem Blick

Automatische Nachtkühlung durch Sommer-Bypass
✔ Laufzeitgesteuerte Filterwechselanzeige
✔ Frostschutzfunktion und elektrisches Vorheizregister (optional) sicher Betrieb bei kalten Temperaturen
Original-Filter des Herstellers als Garant für eine hygienische Luftqualität
Schall- und wärmegedämmtes Stahlblech Gehäuse
Ideal für den Wohnungsbau geeignet dank des einfachen Einbaus und Wartung sowie variablem Anschluss der Luftleitungen und kleine, minimale Luftmenge
✔ Hohe Energieeffizienz dank innovativer Gleichstrommotoren und 95%-iger Wärmerückgewinnung
✔ Vermeidung von trockener Heizungsluft mit Hilfe von Feuchterückgewinnung durch Enthalpietauscher (optional)
Leichte Bedienung und verfügbare Erweiterungen durch Kohlendioxid- und Feuchtigkeitsregelung sowie Funkfernbedienung

Varianten des ComfoAir 160 von Zehnder

Bezeichnung
Beschreibung
Herstellernummer
160Standardvariante mit Kreuzgegenstrom-Wärmetauscher 471 218 210
160 Enthalpie Integrierter Enthalpietauscher anstatt Kreuzgegenstrom-Wärmetauscher 471 218 230
160 VEingebautes Vorheizregister471 218 215
160 V EnthalpieVariante mit eingebautem Vorheizregister und Enthalpietauscher471 218 235

Produktinformationen über das ComfoAir 160

Das ComfoAir besitzt den Vorteil der Wärmerückgewinnung. Der integrierte Kreuzgegenstrom-Wärmetauscher gibt dabei die Wärme der Abluft an die frische, meist kühlere Außenluft ab. Diese erwärmt sich mit einem Wirkungsgrad von 95%, wodurch unangenehme Zugluft effektiv verhindert werden kann.

Das Lüftungsgerät kann wahlweise mit einem Enthalpietauscher ausgestattet werden. Dies trägt zur Regulierung des Feuchtigkeitshaushalts im Gebäude bei und bietet eine einfache Lösung gegen trockene Luft im Winter, denn neben der Wärme wird im Enthalpietauscher auch Feuchtigkeit zurückgewonnen: Aus der Abluft wird die Luftfeuchte auf die Zuluft übertragen.

Die zwei verbauten Zu- und Abluftventilatoren werden von effizienten Gleichstrommotoren angetrieben. Durch ihre separate Ansteuerung kann die Druckdifferenz im Luftzufuhr- und Abfuhrsystem ausgeglichen und der Volumenstrom in Schritten von 1% auf den gewünschten Wert eingestellt werden. Das ermöglicht einen sparsamen Betrieb und daher eine hohe Elektroeffizienz.

Das ComfoAir verfügt über eine automatische Frostschutzfunktion. Wenn Frostgefahr besteht, wird die Außenluftzufuhr durch diese Sicherung erheblich reduziert oder der Luftstrom wird vorübergehend unterbrochen. Dadurch soll verhindert werden, dass der Wärmetauscher bei zu geringer Außenlufttemperatur einfriert. Das Frostschutzelement funktioniert automatisch.

Optional kann im ComfoAir ein elektrisches Vorheizregister installiert werden. Dadurch muss die Zufuhr der kalten Außenluft durch die Frostschutzsicherung nicht mehr oder erst später gestoppt werden. Das hat den Vorteil, dass der Lüftungsbetrieb auch bei extremen Außentemperaturen gewährleistet werden kann.

Das Lüftungselement Bypass wird hauptsächlich in Sommernächten aktiviert, wenn die Temperatur im Haus hoch, die Außenluft hingegen angenehm kühl ist. In diesem Fall wird die kältere Außenluft durch den automatischen Bypass direkt in das Luftverteilungssystem umgeleitet, wobei die Wärmerückgewinnung zu 100% umgangen wird. Es erfolgt keine Erwärmung der einströmenden Luft, der Innenraum wird wirkungsvoll gekühlt.

Das Komfortlüftungsgerät Zehnder ComfoAir 160 ist serienmäßig mit einem G4-Filter ausgestattet. Optional ist ein Pollenfilter-Set der Klasse F7 erhältlich. Dies kann das Innere des Hauses frei von Pollen halten und die Belastung durch Feinstaub, Sporen und Keime verringern.

Bedienung des ComfoAir 160

Die Lüftungseinheit wird mit der kabelgebundenen ComfoSense-Steuereinheit bedient (nicht im Lieferumfang enthalten). Eine Funkfernbedienung RF kann optional dazu gekauft werden, um den Benutzerkomfort zu erhöhen. Mit dieser Fernbedienung kann die Lüftungseinheit drahtlos über mehrere Schalter betrieben werden, die in der gesamten Wohnung verteilt sind.

Außerdem ist es möglich, das Lüftungssystem durch einen Kohlenstoffdioxid- oder Feuchteregler zu ergänzen. Dadurch wird die Erhaltung des optimalen Raumklimas gewährleistet.

Belüftungsstufen mit der Funkfernbedienung RF:

Stufe 1
Reduzierte Lüftung - Verwendung bei einem geringen Belüftungsbedarf
Stufe 2Nennlüftung - Verwendung bei einem normalen Belüftungsbedarf
Stufe 3Intensivlüftung – Verwendung beim Kochen, Duschen und wenn eine hohe Belüftung erwünscht ist
StoßlüftenStoßlüftung des Innenraums über einen kurzen Zeitraum

Reinigung und Wartung des ComfoAir 160 von Zehnder

Alle erforderlichen Wartungsarbeiten können eigenständig am Lüftungsgerät Zehnder ComfoAir 160 durchgeführt werden. Mit der vorderseitig integrierten Filterabdeckung sind die Gerätefilter ohne Werkzeug einfach vom Kunden wechselbar. Nach dem Öffnen der Gerätefront kann außerdem der Wärmetauscher zur Reinigung entnommen werden.

Der Hersteller empfiehlt jedoch den Abschluss eines jährlichen Wartungsvertrages, wodurch die Reinigung eingehender erfolgen kann.

Das ComfoAir sollte wie folgt gepflegt werden:

  • Gerätefilter auf Verschmutzung prüfen und ggf. austauschen (spätestens nach sechs Monaten; je nach Standort und Verschmutzungsgrad der Umluft kann dieser Zeitraum variieren)
  • Raumluftfilter prüfen und ggf. austauschen
  • Ventile reinigen und ggf. Filter austauschen
  • Außenwandgitter auf Unsauberkeit prüfen und ggf. reinigen

Genauere Informationen zu diesen Servicearbeiten finden Sie in der Bedienungsanleitung.

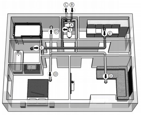
Bestandteile des ComfoAir 160

Die Komfort-Lüftung besteht aus den folgenden Komponenten:
  • (A) ComfoAir 
  • (B) Kanalsystem für die Zufuhr von Außenluft
  • (C) Abfuhr der Innenluft 
  • (D) Zuluftventile in den Wohn- und Schlafzimmern
  • (E) Abluftventile in der Küche, im Badezimmer, WC und ggf. in der Abstellkammer

Aufbau der Lüftereinheit ComfoAir 160

Das ComfoAir 160 besteht aus den folgenden Bauteilen:
  • A) Außengehäuse aus beschichtetem Stahlblech
  • B) Innenbereich aus EPP
  • C) 4 Verbindungen aus EPP für die Luftkanäle 
  • D) 2 Filter für die Luftreinigung
  • E) 2 energiesparende Gleichstrommotoren
  • F) Hochleistungs-Wärmetauscher
  • L) Konnektorplatine mit Anschlüssen für die CC Ease-Bedieneinheit, den Enthapietauscher und die zwei weitere Steuerungen
  • H) Elektronikbox mit Steuerplatine mit Anschlüssen für die Ventilatoren, den Bypass, das Frostschutzelement, Temperatursensoren, der Funkfernbedienung RF (optional) und einem Badezimmerschalter (optional)
  • I) Typenschild mit den Daten
  • J) Kondensatablauf zur Ableitung des Kondensats aus der warmen Abluft
  • K) Aufkleber mit den Luftanschlüssen
  • M) 2 Filterkappen

Technische Details

Volumenstrom
maximal 160 m3/h
minimal 32 m3/h
AbmessungenHöhe: 770 mm
Breite: 670 mm
Tiefe: 268 mm
Gewicht30 kg
Montagewand- und deckenhängend
Einsatzgrenzen7°C bis 40°C im Aufstellraum, ggf. Dämmanforderungen beachten
KondensatanschlussDN 20 (20 mm)
Luftkanalanschlüsse2x nach oben, 2x nach unten DN 125 / 150 / 160
Netzanschluss230 V, 50 Hz
Leistungsaufnahme ohne/mit VEW 9 W / 143 W
Stromaufnahme ohne/mit VEW 0,75 A / 5,77 A
Cos φ 0,39 - 0,49
Schutzklasse IP40
VentilatorenEC-Gleichstromventilatoren radial
Kreuzgegenstrom-WärmetauscherKunststoff / Platinen Polystyrol
Enthalpietauscher mit FeuchterückgewinnungKunststoff / Membran Polymer
Material Innenverkleidung(E)PP / PA / PA
Wärmebereitstellungsgrad nach PHI95 %
FilterAbluft: ISO Coarse ≥ 65 % (G4)
Außenluft: ISO Coarse ≥ 65 % (G4)
(ISO ePM1 ≥ 65 % (F7)
EnergieeffizienzklasseA/A+

Montage

Montage des zentralen Lüftungssystems Zehnder ComfoAir 160

Das Lüftungsgerät Zehnder ComfoAir 160 eignet sich zur Wand- und Deckenmontage oder zum Einbau in Schränke, das ermöglicht eine flexible Einbindung in die Haustechnik. Es wird dabei standardmäßig als rechte Variante ausgeliefert, kann aber vor Ort auf links umgebaut werden.

Die Installation des Gerätes besteht aus den folgenden Schritten:
  1. Kontrolle des Lieferumfangs
  2.  Anschluss des Netzkabels
  3. Montage des ComfoAir 160 (wandhängend oder deckenhängend)
  4. Anbringung der Luftkanäle
  5. Inbetriebnahme des Lüftungsgerätes über die Bedieneinheit

Zubehör

Produkt
Artikelnummer
Bedieneinheit ComfoSense 55655 010 200
Bedieneinheit ComfoSense 67, inkl. Aufputzgehäuse655 010 215
Filterset für ComfoAir 160, G4400 100 023
Filterset für ComfoAir 160, G4/F7400 100 024
Zubehör Kondensatablauf bei Deckenmontage 990 202 050
Trockensiphonset990 201 331
Bedieneinheit RF (Funkfernbedienung) 655 000 755

Lieferung

Lieferumfang des Zehner ComfoAir 160

Das Gerät wird mit den nachfolgenden Teilen zu Ihnen nach Hause geliefert:
  • ComfoAir 160 mit 2 Montagebügeln (Wichtig: Kontrollieren Sie auf dem Typenschild, ob es sich um das richtige Gerät handelt)
  • Dokumentation

Haben Sie das Produkt günstiger gesehen?

Haben Sie das Produkt günstiger gesehen?


Zögern Sie nicht und fragen Sie bei uns nach!

2 von 2 Bewertungen

Durchschnittliche Bewertung von 5 von 5 Sternen


100%

0%

0%

0%

0%


Bewerten Sie dieses Produkt!

Teilen Sie Ihre Erfahrungen mit anderen Kunden.


2 Bewertungen

1. Juni 2022 05:15

Bewertung mit 5 von 5 Sternen

Gute Beratung

-

18. März 2021 10:30

Bewertung mit 5 von 5 Sternen

Super Klima

Passt alles. Läuft ohne Probleme und schafft wirklich eine super Luft.

Produktgalerie überspringen
Bedieneinheit ComfoSense/ ComfoSwitch für ComfoAir - Zehnder - ComfoSense C55

Durchschnittliche Bewertung von 5 von 5 Sternen

Bedieneinheit ComfoSense/ ComfoSwitch für ComfoAir - Zehnder - ComfoSense C55
Gerät: ComfoSense C55

Zehnder ComfoSense / ComfoSwitch - Intuitive Steuerung für Ihr RaumklimaErleben Sie volle Kontrolle über Ihr Raumklima mit der Zehnder ComfoSense / ComfoSwitch Bedieneinheit – für maximalen Wohnkomfort und Energieeffizienz.Die Zehnder ComfoSense und ComfoSwitch Bedieneinheiten sind zentrale Steuereinheiten und Benutzerschnittstellen für eine Vielzahl von Zehnder ComfoAir Lüftungsgeräten mit Wärmerückgewinnung. Sie ermöglichen Ihnen die präzise Steuerung des Luftstroms, wahlweise automatisch oder manuell. Diese kabelgebundenen Einheiten können zudem mit weiteren Zehnder Systemkomponenten wie CO2-Sensoren oder Funkfernbedienungen kommunizieren, um eine umfassende und intelligente Lüftungslösung zu bieten.Ihre Vorteile im Überblick:Zentrale Steuerung: Eine einzige Bedieneinheit für Ihre Zehnder Lüftungsgeräte.Einfache Bedienung: Intuitive und benutzerfreundliche Menüführung für schnelle Anpassungen.Flexible Lüftungsmodi: Wechseln Sie nahtlos zwischen automatischen und manuellen Lüftungseinstellungen.Individuelle Zeitprogramme: Erstellen Sie persönliche Tages- und Wochenzeitprogramme für optimierte Lüftung.Vielseitige Integration: Kompatibel mit gängigen Schalterprogrammen und erweiterbar durch Funkfernbedienungen oder Sensoren.Robuste Bauweise: Inklusive passendem Blendrahmen, Blende und Aufputzgehäuse für eine einfache Installation.Intelligente LüftungssteuerungDie Zehnder ComfoSense und ComfoSwitch ermöglichen Ihnen die präzise Kontrolle über Ihre Lüftungsanlage. Sie können flexibel zwischen automatischen und manuellen Einstellungen des Luftstroms wählen, um stets für optimales Raumklima zu sorgen. Dies bietet Ihnen maximale Anpassungsfähigkeit an Ihre individuellen Bedürfnisse und die Gegebenheiten Ihres Hauses.Der direkte Nutzen liegt in der bedarfsgerechten Belüftung, die nicht nur den Wohnkomfort erhöht, sondern auch zur Energieeffizienz beiträgt, indem nur so viel gelüftet wird, wie nötig.Umfassende Kompatibilität & ErweiterbarkeitAls zentrale Schnittstelle sind die ComfoSense und ComfoSwitch Bedieneinheiten nicht nur mit einer breiten Palette von Zehnder ComfoAir Lüftungsgeräten kompatibel, sondern können auch nahtlos in bestehende Schalterprogramme wie Jung, Gira und Busch-Jaeger integriert werden. Zusätzlich ist eine Kommunikation mit externen Zehnder Komponenten, wie z.B. CO2-Sensoren für eine bedarfsgesteuerte Lüftung oder Funkfernbedienungen für zusätzlichen Komfort, möglich.Diese Vielseitigkeit gewährleistet, dass Ihre Lüftungsanlage optimal in Ihr Smart-Home-System integriert werden kann und jederzeit erweiterbar ist, um zukünftigen Anforderungen gerecht zu werden.Individuelle Zeitplanung und KomfortfunktionenNutzen Sie die Möglichkeit, individuelle Tages- und Wochenzeitprogramme zu erstellen. Dies erlaubt es Ihnen, die Lüftung exakt an Ihren Tagesablauf anzupassen, beispielsweise mit erhöhter Lüftung während der Anwesenheit und reduzierter Lüftung in Abwesenheit. Die integrierte, benutzerfreundliche Menüführung macht die Einrichtung und Anpassung dieser Programme denkbar einfach.Der Komfortgewinn ist enorm: Sie genießen konstant frische Luft ohne manuelles Eingreifen, sparen Energie und profitieren von einem gesunden Raumklima, das sich automatisch an Ihre Gewohnheiten anpasst.Technische SpezifikationenDie Bedieneinheiten Zehnder ComfoSense und ComfoSwitch sind in verschiedenen Ausführungen erhältlich, um unterschiedlichen Anforderungen und Lüftungsgeräte-Serien gerecht zu werden.ModellKompatible Zehnder ComfoAir LüftungsgeräteBesonderheiten / LieferumfangComfoSense C55 / ComfoSwitch C55ComfoAir Q350, Q450, Q600Geeignet für den Einbau in Schalterprogramme von Jung, Gira und Busch-Jaeger. Inkl. 2 Blenden in RAL 9016 (Verkehrsweiß) und 2 Blenden in RAL 9001 (Cremeweiß).ComfoSense C67 / ComfoSwitch C67ComfoAir Q350, Q450, Q600Inkl. Blendrahmen, Blende und Aufputzgehäuse in RAL 9016 (Verkehrsweiß).ComfoSense 55ComfoAir 160, 180, 200, 225, 350, 550Geeignet für den Einbau in Schalterprogramme von Jung, Gira und Busch-Jaeger. Inkl. 2 Blenden in RAL 9016 (Verkehrsweiß) und 2 Blenden in RAL 9001 (Cremeweiß).ComfoSense 67ComfoAir 160, 180, 200, 225, 350, 550Inkl. Blendrahmen, Blende und Aufputzgehäuse in RAL 9016 (Verkehrsweiß).Bedieneinheit RF (Funkfernbedienung)Als zusätzliche Schaltstelle zu Bedieneinheit ComfoSense CIntegrierter RF-Empfänger für drahtlose Steuerung.Hersteller & QualitätDie Zehnder ComfoSense und ComfoSwitch Bedieneinheiten stammen vom renommierten Hersteller Zehnder, einem führenden Anbieter im Bereich der Lüftungs- und Heizungssysteme. Zehnder steht für höchste Qualitätsstandards, Langlebigkeit und innovative Lösungen, die auf dem neuesten Stand der Technik basieren. Verlassen Sie sich auf ein Produkt, das für Zuverlässigkeit und eine optimale Performance entwickelt wurde.Verbessern Sie jetzt Ihr Raumklima und steuern Sie Ihre Lüftungsanlage intuitiv und effizient mit einer Zehnder ComfoSense oder ComfoSwitch Bedieneinheit.Bei Fragen zur Kompatibilität oder Installation stehen Ihnen unsere Experten gerne zur Verfügung. Investieren Sie in Komfort und Lebensqualität!

Varianten ab 139,95 €
Regulärer Preis: 223,02 €
Produktgalerie überspringen
Wetterschutzdach BA VEX - Zehnder

Durchschnittliche Bewertung von 5 von 5 Sternen

Wetterschutzdach BA VEX - Zehnder
Gerät: Maxi 803

Zehnder Filterset ComfoAir G90/G91 G4 - Für saubere Luft und GeräteeffizienzOptimale Raumluftqualität mit dem Zehnder Filterset ComfoAir G90/G91 G4 – Für Ihr Wohlbefinden und die Langlebigkeit Ihrer Lüftungsanlage.Das Zehnder Filterset ComfoAir G90/G91 G4 ist die ideale Lösung für den regelmäßigen und einfachen Austausch Ihrer Lüftungsfilter. Speziell für die Komfort-Lüftungsgeräte ComfoAir G90/91 ab Herstellungsdatum KW41/2001 entwickelt, sorgt dieser Ersatzfiltersatz in Taschenfilter-Ausführung für eine zuverlässige und effiziente Luftfiltration. Sichern Sie sich jederzeit frische und saubere Raumluft und tragen Sie gleichzeitig zur Werterhaltung Ihres Lüftungssystems bei.Ihre Vorteile im Überblick:Einfacher Austausch: Die Filter können werkzeuglos vom Benutzer gewechselt werden, was Zeit und Aufwand spart.Optimale Luftqualität: Die G4 Filterklasse gewährleistet eine effektive Vorfiltration der Zuluft, für ein gesünderes Raumklima.Effizienter Geräteschutz: Schützt die Komponenten Ihres Lüftungsgeräts vor Staub und Schmutz, was die Lebensdauer erhöht.Geringer Wartungsaufwand: Durch den Inhalt von 2 Stück haben Sie stets einen Ersatzfilter zur Hand.Perfekte Passform: Speziell für Zehnder ComfoAir G90/G91 Geräte ab Herstellungsdatum KW41/2001 entwickelt, garantiert optimale Funktion.Effektive Luftfiltration (G4 Taschenfilter)Das Filterset beinhaltet zwei hochwertige G4 Taschenfilter. Diese Filtereinheit ist darauf ausgelegt, grobe Partikel wie Staub, Pollen und Insekten aus der Zuluft zu filtern, bevor sie in Ihr Wohn- oder Arbeitsbereich gelangen.Dies sorgt für eine spürbar reinere und frischere Raumluft, reduziert Allergene und schützt gleichzeitig die inneren Komponenten Ihres Lüftungsgeräts vor Verschmutzung.Werkzeugloser AustauschDie Filter wurden für eine unkomplizierte Handhabung konzipiert. Ihr Austausch kann schnell und einfach ohne den Einsatz von Spezialwerkzeug erfolgen.Dies minimiert den Wartungsaufwand erheblich und ermöglicht es Ihnen, die Filterwechsel eigenständig und ohne Fachkenntnisse durchzuführen, um stets eine optimale Leistung Ihres Lüftungssystems zu gewährleisten.Präzise GerätekompatibilitätDas Filterset ist exakt auf die Zehnder Komfort-Lüftungsgeräte ComfoAir G90/91 ab einem Herstellungsdatum von Kalenderwoche 41 im Jahr 2001 abgestimmt.Diese spezifische Kompatibilität stellt sicher, dass die Filter perfekt sitzen und ihre volle Filtrationsleistung entfalten können, ohne die Effizienz oder den Luftstrom des Geräts zu beeinträchtigen.Technische SpezifikationenParameterWertHinweisTypZE Filterset ComfoAir G90/G91 G4Spezifisch für Zehnder Komfort-LüftungsgeräteInhalt2 StückKomplettes ErsatzsetFilterklasseG4Zur effektiven VorfiltrationAusführungTaschenfilterHohe StaubspeicherfähigkeitKompatibilitätZehnder ComfoAir G90/91Ab Herstellungsdatum KW41/2001WechselintervallRegelmäßig nach BelastungEmpfohlen für optimale LuftqualitätEinsatzbereiche & AnwendungsszenarienDieses Zehnder Filterset ist unverzichtbar für alle Besitzer eines Komfort-Lüftungsgerätes Zehnder ComfoAir G90/91 (ab KW41/2001), die Wert auf eine dauerhaft hohe Raumluftqualität legen. Es ist ideal für den regelmäßigen Filterwechsel in Privathaushalten, Büros oder kleineren gewerblichen Objekten, um die Funktionalität und Effizienz der Lüftungsanlage zu gewährleisten.Nutzen Sie das Set, um die Luft von Allergenen, Feinstaub und anderen Partikeln zu befreien, besonders in Zeiten erhöhter Luftverschmutzung oder bei Anwesenheit von Haustieren.Hersteller & QualitätDas Zehnder Filterset wird vom renommierten Fabrikat Zehnder Comfosystems hergestellt, einem führenden Anbieter im Bereich kontrollierte Wohnraumlüftung. Zehnder steht für höchste Qualitätsstandards, Langlebigkeit und innovative Lösungen, die ein gesundes und komfortables Raumklima fördern.Sorgen Sie jetzt für frische, reine Luft und sichern Sie die Langlebigkeit Ihrer Zehnder Lüftungsanlage mit dem original Filterset!Investieren Sie in Ihr Wohlbefinden und die Effizienz Ihres Lüftungssystems. Bei Fragen zur Kompatibilität oder zum Filterwechsel stehen wir Ihnen gerne beratend zur Seite.

Regulärer Preis: 0,00 €
ComfoSilence Schallda¨mpfer - Zehnder

Durchschnittliche Bewertung von 5 von 5 Sternen

ComfoSilence Schallda¨mpfer - Zehnder
Ausführung: Rechts

Zehnder ComfoSilence Schalldämpfer – Stille für Ihr RaumklimaErleben Sie maximale Ruhe und Komfort mit Zehnder ComfoSilence – für ein ungestörtes Raumklima.Die Zehnder ComfoSilence Schalldämpfer sind speziell für zentrale Komfortlüftungsgeräte entwickelt worden, um eine hocheffiziente Reduzierung von Betriebsgeräuschen zu gewährleisten. Mit ihrer strömungsoptimierten Spezial-Schalldämmkulisse aus abriebfestem Material, eingefasst in ein robustes Gehäuse aus verzinktem Stahlblech, sorgen sie für eine signifikante Senkung des Geräuschpegels und tragen maßgeblich zu einem angenehmen Wohn- und Arbeitsklima bei.Ihre Vorteile im Überblick:Hervorragende Schalldämpfung: Reduziert effektiv Betriebsgeräusche Ihrer Lüftungsanlage für maximale Ruhe in Ihren Räumen.Kompakte Einbaumaße: Ermöglicht eine platzsparende Integration in Ihr Lüftungssystem, auch bei begrenztem Platzangebot.Flexible Anschlussmöglichkeiten: Kompatibel mit verschiedenen Rohrdurchmessern, was die Anpassung an bestehende oder neue Installationen vereinfacht.Inklusive Nebenraumanschlüsse: Erweitert die Funktionalität für eine umfassende Schalloptimierung.Hocheffiziente SchalldämmkulisseDer Zehnder ComfoSilence nutzt eine speziell entwickelte, hocheffiziente Schalldämmkulisse. Diese ist auf eine optimale Strömung der Luft ausgelegt und minimiert gleichzeitig die Geräuschentwicklung. Dies führt zu einer deutlichen Reduzierung der Schallübertragung.Der direkte Nutzen für Sie ist ein erheblich leiserer Betrieb Ihrer Lüftungsanlage, was den Wohnkomfort signifikant steigert und eine ruhige Atmosphäre in Ihren Räumen schafft.Robustes Gehäuse aus verzinktem StahlblechDas Gehäuse der Zehnder ComfoSilence Schalldämpfer besteht aus hochwertigem, verzinktem Stahlblech. Dies gewährleistet nicht nur eine hohe Stabilität und Langlebigkeit des Produkts, sondern schützt die innenliegende Dämmkulisse zuverlässig vor äußeren Einflüssen.Diese Materialwahl garantiert eine dauerhafte Funktionstüchtigkeit und Sicherheit Ihrer Investition, selbst unter anspruchsvollen Betriebsbedingungen.Abriebfeste SchalldämmkulisseDie strömungsoptimierte Schalldämmkulisse ist aus abriebfestem Material gefertigt. Dies verhindert Materialermüdung und gewährleistet eine konstante Dämpfungsleistung über die gesamte Lebensdauer des Schalldämpfers.Sie profitieren von einer gleichbleibend hohen Effizienz der Schalldämpfung und einer langen Lebensdauer des Produkts, ohne dass die Leistung im Laufe der Zeit nachlässt.Technische SpezifikationenParameterWertTyp/HinweisMaximale Luftmenge200-550 m³/hModellabhängigEinfügungsdämpfungsmaß (bei 250 Hz)20 dBBeispielhaft für Kastenschalldämpfer DN 125GehäusematerialVerzinktes StahlblechRobust und langlebigMaterial SchalldämmkulisseAbriebfestes MaterialStrömungsoptimiertArtikelgewicht6,50 kgBeispielhaft für CSI 550, DN 200, L: 700 mm zentrischModell/TypNenndurchmesser (DN)LängeAusführungKastenschalldämpfer CSI 350125 mm700 mmzentrischKastenschalldämpfer CSI 350160 mm700 mmzentrischKastenschalldämpfer CSI 550180 mm900 mmexzentrischKastenschalldämpfer CSI 550200 mm700 mmzentrischSchalldämpfer für ComfoAir 180N/A712 mm (L)Rechte Ausführung (330x200 mm BxH)Schalldämpfer für ComfoAir 180N/A712 mm (L)Linke Ausführung (330x200 mm BxH)Telefonie-Schalldämpfer125 mm1000 mmflexibelTelefonie-Schalldämpfer160 mm1000 mmflexibelTelefonie-Schalldämpfer200 mm1000 mmflexibelEinsatzbereiche & AnwendungsszenarienDie Zehnder ComfoSilence Schalldämpfer sind ideal für den Einsatz in Verbindung mit zentralen Lüftungsgeräten wie dem Zehnder ComfoAir 180. Sie werden typischerweise in Zuluft- und Abluftleitungen installiert, um die Übertragung von Betriebsgeräuschen in Wohn- und Arbeitsräume zu unterbinden.Besonders geeignet sind sie für Gebäude, in denen ein hoher Anspruch an die Raumakustik und den Wohnkomfort gestellt wird, wie in Schlafzimmern, Büros oder Aufenthaltsräumen.Hersteller & QualitätDie Zehnder ComfoSilence Produkte stammen von der renommierten Zehnder Group Deutschland GmbH, einem führenden Anbieter im Bereich kontrollierter Wohnraumlüftung und Raumklimasysteme. Zehnder steht für höchste Qualitätsstandards, innovative Technologien und eine präzise Verarbeitung, die Langlebigkeit und zuverlässige Funktion garantiert.Investieren Sie in die Zehnder ComfoSilence Schalldämpfer und genießen Sie eine neue Dimension der Ruhe in Ihren vier Wänden!Für weitere Informationen oder eine persönliche Beratung zu unseren Produkten stehen wir Ihnen jederzeit gerne zur Verfügung.

Regulärer Preis: 0,00 €
Luftdurchlassgeha¨use TVA 75 PH-D/W - Zehnder

Durchschnittliche Bewertung von 5 von 5 Sternen

Luftdurchlassgeha¨use TVA 75 PH-D/W - Zehnder
Typ: PH-D

Luftdurchlassgehäuse TVA 75 PH-D/W - Effiziente Luftnachheizung für Ihr ZuhauseSorgen Sie für optimal temperierte Zuluft mit dem Zehnder Luftdurchlassgehäuse TVA 75 – für maximalen Komfort in Ihren Räumen.Das Zehnder Luftdurchlassgehäuse TVA 75 PH-D/W aus verzinktem Stahlblech ist die ideale Lösung zur zuverlässigen Nacherwärmung der Zuluft in Ihrem Lüftungssystem. Speziell entwickelt für eine effiziente Luftverteilung, bietet es mit seinem integrierten PTC-Heizelement von 400 W eine konstante und angenehme Raumtemperatur, sowohl für Decken- als auch für Wandeinbau. Es ist perfekt abgestimmt auf die ComfoTube DN 75 Luftleitungen und sorgt für ein behagliches Raumklima.Ihre Vorteile im Überblick:Zuverlässige Nacherwärmung: Gewährleistet stets optimal temperierte Zuluft für ein behagliches Raumklima.Effizientes Heizelement: Das integrierte 400 W PTC-Heizelement sorgt für eine konstante und sichere Lufterwärmung.Flexible Installation: Verfügbar für Decken- (PH-D) und Wandeinbau (PH-W), passt es sich flexibel Ihren räumlichen Gegebenheiten an.Robuste Bauweise: Gefertigt aus verzinktem Stahlblech für Langlebigkeit und zuverlässige Funktion.Optimale Systemintegration: Perfekt abgestimmt auf Zehnder ComfoTube 2 x DN 75 Luftleitungen und DN 125 Tellerventile.Integriertes PTC-Heizelement 400 WDieses leistungsstarke Heizelement erwärmt die durchströmende Luft effizient und sicher.Sie profitieren von einer angenehmen Raumtemperatur und vermeiden kalte Zugluft, was Ihren Wohnkomfort erheblich steigert.Vielseitige EinbauvariantenErhältlich als Modell PH-D für den Deckeneinbau und als Modell PH-W für den Wandeinbau, jeweils inklusive passendem Ventil.Diese Flexibilität ermöglicht eine optimale Integration in unterschiedliche Raumkonzepte und sorgt für eine unauffällige und effektive Luftverteilung.Kompatibilität mit Zehnder ComfoTube SystemenSpeziell für den Anschluss an zwei ComfoTube DN 75 Luftleitungen und DN 125 Zuluft-Tellerventile konzipiert.Dies gewährleistet eine nahtlose Integration in Ihr bestehendes Zehnder Lüftungssystem und eine maximale Effizienz der Luftverteilung.Technische SpezifikationenParameterWertBesonderheitElektrischer Anschluss230 Vac, 50/60 HzStandardanschluss für einfache IntegrationAnlaufstrommax. 2,5 AGeringer Anlaufstrom für stabile LeistungSchutzartIP20Schutz gegen feste Fremdkörper > 12,5 mmLuftvolumenstrommax. 60 m³/hEffiziente LuftzirkulationLuftleitungsanschluss2 x ComfoTube 75Optimale Kompatibilität mit Zehnder SystemenModellGewichtTVA 75 PH-D2,5 kgTVA 75 PH-W2,8 kgEinsatzbereiche & AnwendungsszenarienWohngebäude & Einfamilienhäuser: Ideal zur Nacherwärmung der Zuluft in Wohnzimmern, Schlafzimmern und Büros, um stets ein behagliches Raumklima zu gewährleisten.Modernisierungen & Neubau: Perfekt geeignet für die Integration in moderne Lüftungssysteme, wo Komfort und Energieeffizienz im Vordergrund stehen, sowohl bei Sanierungen als auch in Neubauprojekten.Räume mit variierenden Temperaturanforderungen: Optimal für Bereiche, in denen eine präzise Temperaturregelung der Zuluft gewünscht ist, um kalte Luftzüge zu vermeiden.Hersteller & QualitätAls Produkt von Zehnder, einem führenden Hersteller im Bereich komfortabler Raumlüftung, steht das Luftdurchlassgehäuse TVA 75 für höchste Qualitätsstandards, Langlebigkeit und innovative Technik. Verlassen Sie sich auf bewährte Schweizer Präzision und deutsche Ingenieurskunst für Ihr Raumklima.Erleben Sie den Unterschied einer optimal temperierten Zuluft in Ihrem Zuhause!Investieren Sie in das Zehnder Luftdurchlassgehäuse TVA 75 und genießen Sie höchsten Wohnkomfort. Für eine persönliche Beratung oder weitere Informationen stehen wir Ihnen gerne zur Verfügung.

Regulärer Preis: 0,00 €
Zehnder Filterverschluss ComfoSpot 50 für Aussen- und Abluftfilter - 521014860
Zehnder Filterverschluss ComfoSpot 50 für Aussen- und Abluftfilter - 521014860

Zehnder Filterverschluss ComfoSpot 50 – Dichtung für effiziente LüftungSorgen Sie für optimale Luftqualität mit dem Zehnder Filterverschluss ComfoSpot 50 – für ein gesünderes Raumklima.Der Zehnder Filterverschluss ComfoSpot 50 ist ein essentielles Ersatzteil für Ihr dezentrales Lüftungsgerät ComfoSpot 50. Er gewährleistet eine zuverlässige Abdichtung der Aussen- und Abluftfilter, was für die Aufrechterhaltung einer hohen Luftqualität und die Effizienz Ihres Lüftungssystems unerlässlich ist. Sorgen Sie mit diesem speziellen Verschluss dafür, dass Ihr Gerät optimal funktioniert und unerwünschte Partikel draußen bleiben.Ihre Vorteile im Überblick:Optimale Dichtheit: Gewährleistet einen lückenlosen Abschluss der Filter für maximale Effizienz des Lüftungsgeräts.Verbesserte Luftqualität: Verhindert das Eindringen von ungefilterter Luft und schützt so effektiv vor Staub und Allergenen.Verlängerte Lebensdauer des Filters: Schützt den Filter vor Beschädigungen und sorgt für eine korrekte Positionierung, was seine Nutzungsdauer erhöht.Einfache Wartung: Ermöglicht einen schnellen und unkomplizierten Filterwechsel, um die Leistung des Systems zu erhalten.Passgenauigkeit: Speziell für das Zehnder ComfoSpot 50 Gerät entwickelt, garantiert eine perfekte Kompatibilität und Funktion.Sichere FilterfixierungDieser Filterverschluss stellt sicher, dass Aussen- und Abluftfilter im Zehnder ComfoSpot 50 Lüftungsgerät fest und korrekt sitzen.Die präzise Passform verhindert, dass ungefilterte Luft am Filter vorbeiströmt und gewährleistet so die volle Reinigungsleistung Ihres Systems.Hochwertiges MaterialGefertigt aus robustem Zellkautschuk bietet der Verschluss eine ausgezeichnete Dichtigkeit und Langlebigkeit.Dieses Material ist widerstandsfähig gegenüber Umwelteinflüssen und garantiert eine dauerhaft zuverlässige Abdichtung für eine konstante Luftqualität.Einfache IntegrationDer Verschluss ist als Originalersatzteil konzipiert und lässt sich mühelos in Ihr Zehnder ComfoSpot 50 Lüftungsgerät integrieren.Dies erleichtert die regelmäßige Wartung und den Filterwechsel, was wiederum die Effizienz und Hygiene Ihres Lüftungssystems sicherstellt.Technische SpezifikationenParameterWertBesonderheitMaterialZellkautschukLanglebig und dichtschließendMenge1 StückDirekt einsatzbereitKompatibilitätGerätHinweisGerätetypDezentrales LüftungsgerätZehnder ComfoSpot 50AnwendungFür Aussen- und AbluftfilterExakte Passform für beide FiltertypenEinsatzbereiche & AnwendungsszenarienDer Zehnder Filterverschluss ist ideal für die regelmäßige Wartung Ihres dezentralen Lüftungsgeräts Zehnder ComfoSpot 50.Er ist unverzichtbar, um nach jedem Filterwechsel eine optimale Abdichtung zu gewährleisten und somit dauerhaft eine hohe Raumluftqualität in Wohnräumen und kleinen Büroeinheiten zu sichern.Hersteller & QualitätDieser Filterverschluss ist ein Originalersatzteil von Zehnder Comfosystems, einem führenden Hersteller im Bereich komfortabler Innenraumlüftung. Zehnder steht für höchste Qualitätsstandards, Präzision in der Fertigung und Langlebigkeit seiner Produkte, was eine zuverlässige Funktion und Kompatibilität gewährleistet.Sichern Sie die optimale Leistung und Luftqualität Ihres Zehnder ComfoSpot 50 Lüftungsgeräts.Bestellen Sie den Original Filterverschluss noch heute und sorgen Sie für dauerhaft frische und saubere Raumluft. Bei Fragen stehen wir Ihnen gerne beratend zur Seite.

Regulärer Preis: 2,12 €
Zehnder Druckschlauch ComfoAir Q  für Ventilator - 400600003
Zehnder Druckschlauch ComfoAir Q für Ventilator - 400600003

Zehnder Druckschlauch ComfoAir Q für Ventilator – Für optimale LüftungSorgen Sie für eine einwandfreie Funktion Ihrer Zehnder ComfoAir Q Anlage mit dem Zehnder Druckschlauch und genießen Sie stets frische und gesunde Luft.Der Zehnder Druckschlauch für ComfoAir Q Lüftungsgeräte ist ein essenzielles Ersatzteil, um die präzise Funktion Ihrer Lüftungsanlage zu gewährleisten. Speziell entwickelt für die Modelle ComfoAir Q 350, 450 und 600, sorgt dieser Schlauch für die korrekte Druckmessung des Ventilators. Er ist unverzichtbar für den Austausch defekter oder verschlissener Schläuche, um die Effizienz und Zuverlässigkeit Ihres Zehnder ComfoAir Q Systems aufrechtzuerhalten und jederzeit ein optimales Raumklima zu sichern.Ihre Vorteile im Überblick:Präzise Druckmessung: Gewährleistet die genaue Erfassung des Ventilator-Drucks für eine effiziente Lüftung.Optimale Systemleistung: Stellt sicher, dass Ihre Zehnder ComfoAir Q Anlage stets mit maximaler Effizienz arbeitet.Einfacher Austausch: Als Original-Ersatzteil konzipiert, ermöglicht er einen unkomplizierten Wechsel bei Verschleiß oder Defekt.Langlebige Qualität: Hergestellt nach Zehnder Qualitätsstandards für eine zuverlässige und dauerhafte Funktion.Sicherung der Luftqualität: Trägt maßgeblich zur Aufrechterhaltung einer gesunden und frischen Raumluft bei.Druckübertragung für VentilatorenDer Schlauch verbindet die Drucksonde mit dem Ventilator innerhalb der ComfoAir Q Einheit.Diese Verbindung ermöglicht die kontinuierliche Überwachung des Luftdrucks und gewährleistet so die korrekte Funktion des Lüftungssystems.Integration in ComfoAir Q SystemeSpeziell für die Zehnder ComfoAir Q Modelle 350, 450 und 600 entwickelt.Die perfekte Passform garantiert eine einfache Installation und die volle Kompatibilität mit Ihrer bestehenden Zehnder Lüftungsanlage.Technische SpezifikationenModellreiheKompatibilitätZehnder ComfoAir Q350, 450, 600Einsatzbereiche & AnwendungsszenarienDieser Druckschlauch ist ideal für die planmäßige Wartung und Instandhaltung Ihrer Zehnder ComfoAir Q Lüftungsanlage, um die Langlebigkeit und Effizienz des Systems zu sichern.Er ist unverzichtbar zur Behebung von Störungen und Fehlermeldungen, die auf einen defekten oder undichten Druckschlauch hinweisen, und stellt die zuverlässige Funktion Ihres Ventilators wieder her.Hersteller & QualitätAls Original-Ersatzteil von Zehnder Comfosystems steht dieser Druckschlauch für höchste Qualität und Zuverlässigkeit. Zehnder ist ein führender Hersteller im Bereich komfortabler Raumlüftung und garantiert Produkte, die perfekt auf die jeweiligen Systeme abgestimmt sind.Investieren Sie in die Langlebigkeit und Effizienz Ihrer Zehnder ComfoAir Q Lüftungsanlage.Sichern Sie sich jetzt den originalen Zehnder Druckschlauch und profitieren Sie von einem jederzeit optimalen Raumklima.

Regulärer Preis: 4,54 €
ComfoTool Rohrschneider/ Ersatzklingen - Zehnder

Durchschnittliche Bewertung von 5 von 5 Sternen

ComfoTool Rohrschneider/ Ersatzklingen - Zehnder
Variante (Erklärung unten): Rohrschneider

Zehnder ComfoTool Ersatzklingen - Präzises Trennen für Ihre LüftungssystemeSichern Sie die Effizienz Ihrer Lüftungsinstallationen mit den Zehnder ComfoTool Ersatzklingen für dauerhaft saubere Schnitte und optimale Systemleistung.Die Zehnder ComfoTool Ersatzklingen sind speziell für den Zehnder ComfoTool Rohrschneider konzipiert und gewährleisten präzise und saubere Schnitte an ComfoTube 75 und 90 Rohren. Ein regelmäßiger Austausch der Klingen sichert die Effizienz Ihrer Lüftungsinstallationen und vermeidet unsaubere Kanten, die die Luftströmung beeinträchtigen könnten. Dieses Set bietet Ihnen zwei hochwertige Ersatzklingen für eine langfristig optimale Leistung Ihres Werkzeugs.Ihre Vorteile im Überblick:Präzise Schnitte: Ermöglichen saubere und glatte Schnittkanten an Zehnder ComfoTube 75 und 90 Rohren für eine perfekte Installation.Optimale Kompatibilität: Speziell für den Zehnder ComfoTool Rohrschneider entwickelt, garantieren sie eine nahtlose Passform und Funktionalität.Erhöhte Effizienz: Sorgen für eine dauerhaft hohe Schneidleistung, was die Arbeitsabläufe beschleunigt und die Montagequalität verbessert.Langlebige Qualität: Gefertigt aus hochwertigen Materialien für eine lange Lebensdauer und zuverlässige Leistung unter anspruchsvollen Bedingungen.Praktisches Doppelpack: Jedes Set enthält zwei Ersatzklingen, sodass Sie stets eine Reserve für den schnellen Austausch zur Hand haben.Präzises Trennen von ComfoTube RohrenDie Zehnder ComfoTool Ersatzklingen sind speziell für das exakte Ablängen der ComfoTube 75 und 90 Lüftungsrohre konzipiert. Ihre scharfen Kanten und die präzise Geometrie ermöglichen saubere und gratfreie Schnitte.Dies ist entscheidend für eine einwandfreie Rohrverbindung und die optimale Luftführung in Ihrem Lüftungssystem. Unsaubere oder ungenaue Schnitte könnten die Montage erschweren, die Dichtheit beeinträchtigen und langfristig zu Effizienzverlusten führen.Schneller und sicherer KlingenwechselDas Design der Ersatzklingen erlaubt einen unkomplizierten und sicheren Austausch im Zehnder ComfoTool Rohrschneider. Sie sind so konstruiert, dass sie passgenau in die Vorrichtung des Werkzeugs eingesetzt werden können.Dieser einfache Austausch minimiert Stillstandzeiten und stellt sicher, dass Sie jederzeit mit optimal geschärften Klingen arbeiten. Dies garantiert nicht nur die Qualität Ihrer Arbeit, sondern erhöht auch die Arbeitssicherheit, da das Risiko von Abrutschen bei stumpfen Klingen reduziert wird.Technische SpezifikationenParameterWertHinweis/BesonderheitLieferumfang2 StückSet bestehend aus zwei ErsatzklingenKompatibilitätZehnder ComfoTool RohrschneiderSpeziell für das Schneiden von Zehnder ComfoTube 75 und 90 RohrenArtikelgewicht0,01 kgGeringes Gewicht für einfache HandhabungEinsatzbereiche & AnwendungsszenarienDie Zehnder ComfoTool Ersatzklingen sind unverzichtbar für alle Fachkräfte, die mit der Installation oder Wartung von Zehnder Lüftungssystemen arbeiten. Sie finden ihren primären Einsatz beim präzisen Ablängen der ComfoTube 75 und 90 Lüftungsrohre.Besonders relevant sind sie in Heizungsfachbetrieben und bei Vertragsinstallationsunternehmen, die eine hohe Qualität und Effizienz bei der Verlegung von Lüftungsleitungen gewährleisten müssen. Der regelmäßige Austausch der Klingen sichert die Qualität jeder Rohrverbindung und somit die Leistung des gesamten Systems.Hersteller & QualitätDie Zehnder ComfoTool Ersatzklingen werden von der renommierten Zehnder Group Deutschland GmbH hergestellt, einem führenden Anbieter im Bereich kontrollierter Wohnraumlüftung. Zehnder steht für innovative Produkte, höchste Qualitätsstandards und Zuverlässigkeit in der Lüftungstechnik.Wichtiger Sicherheitshinweis: Für Ihre Sicherheit und die optimale Funktion des Produkts weisen wir darauf hin, dass Montage, Erstinbetriebnahme, Inspektion, Wartung und Instandsetzung ausschließlich von autorisierten Fachkräften (Heizungsfachbetrieb / Vertragsinstallationsunternehmen) vorgenommen werden sollten.Stellen Sie die Präzision und Langlebigkeit Ihrer Lüftungsinstallationen sicher!Bestellen Sie jetzt die Zehnder ComfoTool Ersatzklingen und profitieren Sie von dauerhaft sauberen Schnitten und einer optimalen Systemleistung. Bei Fragen stehen Ihnen unsere Experten gerne zur Verfügung.

Varianten ab 7,95 €
Regulärer Preis: 28,95 €
Zehnder Kondensatwanne Novus 300/450 unter dem Wärmetauscher - 521013710
Zehnder Kondensatwanne Novus 300/450 unter dem Wärmetauscher - 521013710

ZE Kondensatwanne Novus 300/450 - Effizienter Schutz für LüftungsgeräteSchützen Sie Ihr Lüftungssystem mit der Zehnder Kondensatwanne Novus 300/450 für langfristige Zuverlässigkeit und Leistung.Die Zehnder Kondensatwanne ist eine essenzielle Ersatzkomponente, speziell entwickelt für die Wärmetauscher der Zehnder Komfortlüftungsgeräte Novus 300 und Novus 450. Sie wird präzise unter dem Wärmetauscher platziert, um anfallendes Kondensat sicher aufzufangen. Dies schützt Ihre wertvolle Anlage vor Feuchtigkeitsschäden und gewährleistet den zuverlässigen Betrieb Ihrer Lüftungsanlage.Ihre Vorteile im Überblick:Optimale Passgenauigkeit: Speziell für die Zehnder Komfortlüftungsgeräte Novus 300 und Novus 450 entwickelt.Effektiver Feuchtigkeitsschutz: Fängt anfallendes Kondensat zuverlässig auf und schützt so den Wärmetauscher vor Nässeschäden.Sicherung der Langlebigkeit: Trägt maßgeblich zur Bewahrung der Funktionstüchtigkeit und Lebensdauer Ihres Lüftungssystems bei.Einfache Integration: Die unkomplizierte Platzierung unter dem Wärmetauscher ermöglicht einen schnellen Austausch.Zuverlässiger KondensatauffangDiese Kondensatwanne ist exakt darauf ausgelegt, das während des Lüftungsbetriebs entstehende Kondensat des Wärmetauschers sicher und effizient aufzufangen. Sie sammelt die Feuchtigkeit, bevor diese Schäden an der Umgebung oder den internen Komponenten des Lüftungsgerätes verursachen kann.Der direkte Nutzen dieser Funktion ist der präventive Schutz Ihres Lüftungssystems vor Nässeschäden und Korrosion, wodurch die Betriebssicherheit und Langlebigkeit der gesamten Anlage erheblich verbessert werden.Nahtlose KompatibilitätAls Original-Ersatzteil ist die Kondensatwanne speziell für die Zehnder Komfortlüftungsgeräte Novus 300 und Novus 450 konzipiert. Dies garantiert eine perfekte Passform und Kompatibilität mit den bestehenden Systemkomponenten.Ihr direkter Nutzen liegt in der einfachen Installation und der Gewissheit, dass das Ersatzteil optimal in Ihr Zehnder Lüftungssystem integriert wird, ohne dass es zu Funktionseinbußen oder Anpassungsproblemen kommt.Technische SpezifikationenParameterWertProdukttypKondensatwanneKompatibilitätZehnder Novus 300, Zehnder Novus 450PositionierungUnter dem WärmetauscherHersteller-Artikelnummer521013710GTIN8717573043045Einsatzbereiche & AnwendungsszenarienDie Zehnder Kondensatwanne Novus 300/450 ist die ideale Lösung für den Austausch oder die Wartung Ihrer Zehnder Komfortlüftungsgeräte der Serien Novus 300 und Novus 450. Sie wird präzise unter dem Wärmetauscher positioniert, um seine Funktion als Feuchtigkeitsschutz zu gewährleisten.Dieses Ersatzteil ist unverzichtbar, wenn die ursprüngliche Kondensatwanne beschädigt ist oder im Rahmen von regelmäßigen Wartungsarbeiten ausgetauscht werden muss, um die Effizienz und Sicherheit Ihres Lüftungssystems langfristig zu erhalten.Hersteller & QualitätAls Original-Ersatzteil der Marke Zehnder Comfosystems steht diese Kondensatwanne für höchste Qualitätsstandards und garantiert eine perfekte Kompatibilität sowie Langlebigkeit. Zehnder ist bekannt für seine hochwertigen Lösungen im Bereich Komfortlüftung und stellt sicher, dass jedes Bauteil optimal auf die Systemanforderungen abgestimmt ist.Sorgen Sie für den optimalen Schutz und die langfristige Leistungsfähigkeit Ihrer Zehnder Komfortlüftungsanlage!Bestellen Sie die Zehnder Kondensatwanne Novus 300/450 noch heute und sichern Sie den zuverlässigen Betrieb Ihres Systems. Für weitere Informationen oder persönliche Beratung stehen wir Ihnen jederzeit gerne zur Verfügung.

Regulärer Preis: 8,44 €
ComfoFix Distanzschiene - Zehnder

Durchschnittliche Bewertung von 5 von 5 Sternen

ComfoFix Distanzschiene - Zehnder

Zehnder ComfoFix Distanzschiene - Wandabstand sicher überbrückenPerfekte Montage mit der Zehnder ComfoFix Distanzschiene - Für eine stabile und sichere Installation!Die Zehnder ComfoFix Distanzschiene ist ein unverzichtbares Zubehörteil für die fachgerechte Installation Ihres Lüftungssystems. Sie dient dazu, den Wandabstand präzise zu überbrücken, insbesondere bei der vertikalen Montage des ComfoPipe Plus Doppelkanals über dem Lüftungsgerät. In Kombination mit der Zehnder Halteklammer breit gewährleistet diese robuste Distanzschiene aus verzinktem Stahl eine stabile und sichere Befestigung.Ihre Vorteile im Überblick:Präzise Wandabstandsüberbrückung: Sorgt für eine exakte Anpassung und optimale Ausrichtung des Doppelkanals.Erhöhte Stabilität: Gewährleistet einen sicheren und festen Halt der Installation, besonders bei vertikaler Montage.Perfekte Kompatibilität: Speziell entwickelt für die Verwendung mit Zehnder ComfoPipe Plus Doppelkanälen und Halteklammern breit.Langlebiges Material: Gefertigt aus verzinktem Stahl für hohe Korrosionsbeständigkeit und lange Lebensdauer.Einfache Installation: Die benötigten Bohrschrauben sind bereits im Lieferumfang enthalten, was die Montage erleichtert.WandabstandsüberbrückungDie Distanzschiene schließt den Spalt zwischen Wand und dem montierten ComfoPipe Plus Doppelkanal effektiv und sauber.Dies ermöglicht eine bündige und ästhetisch ansprechende Installation, die gleichzeitig die Stabilität des gesamten Lüftungssystems erhöht und unerwünschte Zwischenräume vermeidet.Kompatibilität mit Zehnder SystemenDie ComfoFix Distanzschiene ist speziell für die vertikale Montage über dem Lüftungsgerät und in Verbindung mit der Zehnder Halteklammer breit konzipiert.Diese spezielle Auslegung stellt sicher, dass alle Zehnder Komponenten perfekt zusammenpassen und eine reibungslose, zuverlässige sowie dauerhaft sichere Funktion Ihres Lüftungssystems gewährleistet ist.Technische SpezifikationenParameterDetailsBezeichnungDistanzschieneTypZE Distanzschiene ComfoFix f. Doppelkanal, f. verti. Mont. ü. GerätMaterialStahl, verzinktKompatibilitätFür Doppelkanal; Für vertikale Montage über dem Gerät; In Verbindung mit Zehnder Halteklammer breitLieferumfang4x Bohrschraube M3HerstellerZehnder ComfosystemsVerwendungszweckÜberbrückung des Wandabstands bei vertikaler Montage der Halteklammer breit senkrecht über dem Lüftungsgerät ComfoAir 180 (eine Distanzschiene pro Halter benötigt)Einsatzbereiche & AnwendungsszenarienInstallation von Lüftungssystemen: Ideal für die professionelle und stabile Befestigung von Zehnder ComfoPipe Plus Doppelkanälen bei vertikaler Montage direkt über dem Lüftungsgerät.Anwendung mit Zehnder ComfoAir 180: Speziell konzipiert für den Einsatz in Verbindung mit dem Lüftungsgerät ComfoAir 180, um den erforderlichen Wandabstand präzise auszugleichen und eine sichere Installation zu gewährleisten.Optimierung der Wandmontage: Unverzichtbar, um bei Verwendung der Zehnder Halteklammer breit senkrecht über dem Gerät eine bündige und ästhetisch ansprechende Installation zu erreichen, die keine Spalten oder unsaubere Übergänge aufweist.Hersteller & QualitätDie Zehnder ComfoFix Distanzschiene stammt vom renommierten Hersteller Zehnder Comfosystems, einem führenden Anbieter im Bereich kontrollierte Wohnraumlüftung. Zehnder steht für höchste Qualitätsstandards und innovative Lösungen, die eine lange Lebensdauer und zuverlässige Funktion Ihrer Lüftungsanlage gewährleisten.Sorgen Sie für eine professionelle und dauerhaft stabile Installation Ihres Lüftungssystems! Die Zehnder ComfoFix Distanzschiene ist das Detail, das den Unterschied macht.Haben Sie Fragen zur Montage oder Kompatibilität? Unser Expertenteam berät Sie gerne umfassend, um die optimale Lösung für Ihre Anforderungen zu finden.

Regulärer Preis: 8,95 €
Außenwandgitter DN 100 für CV2 - Zehnder

Durchschnittliche Bewertung von 5 von 5 Sternen

Außenwandgitter DN 100 für CV2 - Zehnder

Zehnder Außenwandgitter DN 100 für CV2 - Optimale Abluftführung und WetterschutzEffektiver Schutz mit dem Zehnder Außenwandgitter DN 100 für dauerhaft saubere Luft und Gebäudeschutz.Das Zehnder Außenwandgitter DN 100 ist die ideale Ergänzung für Ihren Zehnder Abluftventilator CV2 und wurde speziell für eine effiziente Außenwandmontage konzipiert. Dieses robuste Gitter aus UV-beständigem PVC-Kunststoff schützt Ihre Abluftanlage zuverlässig vor Witterungseinflüssen. Es gewährleistet eine optimale Luftabfuhr und trägt durch seine Konstruktion zu einem langfristigen Gebäudeschutz bei.Ihre Vorteile im Überblick:Effektiver Wetterschutz: Die integrierte Abtropfkante und das UV-beständige PVC-Material schützen Ihr Lüftungssystem zuverlässig vor Regen und anderen Witterungseinflüssen.Optimale Luftzirkulation: Flexible Lamellen verhindern das Eindringen von Wasser, Insekten und Schmutz, während eine ungehinderte Abluftführung gewährleistet wird.Einfache Wartung: Das Design ohne Rückschlagklappe ermöglicht eine leichte und schnelle Zugänglichkeit für Reinigungs- und Wartungsarbeiten, was die Langlebigkeit des Systems fördert.Hohe Langlebigkeit: Gefertigt aus robustem, weißem Kunststoff ist das Außenwandgitter widerstandsfähig und behält auch bei direkter Sonneneinstrahlung seine Farbe und Form.Unkomplizierte Montage: Dank der durchdachten Konstruktion lässt sich das Gitter schnell und einfach an der Außenwand installieren und integrieren.Zuverlässiger WetterschutzDas Zehnder Außenwandgitter DN 100 ist aus hochwertigem, UV-beständigem PVC-Kunststoff gefertigt und verfügt über eine integrierte Abtropfkante. Diese Konstruktion schützt Ihre Lüftungsanlage effektiv vor eindringendem Regenwasser und anderen Witterungseinflüssen, was die Lebensdauer Ihres Systems erheblich verlängert.So bleibt Ihr Gebäudeinnere trocken und Schäden durch Feuchtigkeit werden zuverlässig vermieden.Effiziente AbluftführungAusgestattet mit flexiblen Lamellen, gewährleistet das Gitter eine optimale Abluftführung bei gleichzeitigem Schutz vor dem Eindringen von Fremdkörpern wie Insekten oder grobem Schmutz. Der Rohranschluss DN 100 ist perfekt auf den Zehnder Abluftventilator CV2 abgestimmt.Dies sorgt für einen ungehinderten Luftaustausch und trägt zur Aufrechterhaltung einer hohen Raumluftqualität bei, indem verbrauchte Luft effizient abgeführt wird.Wartungsfreundliches DesignDas Design des Außenwandgitters verzichtet bewusst auf eine Rückschlagklappe, was die Zugänglichkeit und somit die Reinigung und Wartung erheblich vereinfert. Die robusten Materialien und die einfache Handhabung garantieren eine langanhaltende Funktion.Dadurch minimieren sich der Wartungsaufwand und die Betriebskosten, während die Leistungsfähigkeit Ihrer Lüftungsanlage langfristig erhalten bleibt.Technische SpezifikationenParameterWertBesonderheitTypZE AußenwandgitterFür Zehnder Abluftventilator CV2RohranschlussDN 100Standardgröße für AbluftsystemeMaterialKunststoff PVCUV-beständig, weiß mattMenge1 StückLieferumfangArtikelnummer39502477Hersteller-IdentifikationAbmessungMaßHinweisBreite153 mmAußenmaßHöhe153 mmAußenmaßGesamtabmessung153 x 153 mmKompaktes, quadratisches DesignEinsatzbereiche & AnwendungsszenarienDas Zehnder Außenwandgitter DN 100 ist prädestiniert für den Einsatz in allen Gebäuden, in denen eine effiziente und geschützte Abluftführung notwendig ist. Es eignet sich ideal für die Montage an Außenwänden von:Bädern und Toiletten, um Feuchtigkeit und Gerüche zuverlässig abzuführen.Küchen, zur Ableitung von Kochdünsten und Gerüchen nach außen.Hauswirtschaftsräumen und anderen innenliegenden Ablufträumen, die eine kontrollierte Entlüftung benötigen.Besonders empfehlenswert ist es für Neubauten und Sanierungsprojekte, die Wert auf hohe Luftqualität, Langlebigkeit des Lüftungssystems und einen unauffälligen, aber effektiven Wetterschutz legen.Hersteller & QualitätDas Zehnder Außenwandgitter DN 100 wird vom renommierten Hersteller Zehnder Comfosystems gefertigt, einem führenden Anbieter im Bereich Lüftungssysteme. Zehnder steht für erstklassige Qualität, innovative Lösungen und höchste Zuverlässigkeit. Dieses Produkt erfüllt strenge Qualitätsstandards, was eine lange Lebensdauer und dauerhafte Funktionalität garantiert. Sie investieren in ein Markenprodukt, das durch seine Präzision und Materialgüte überzeugt und die Energieeffizienz Ihres Gebäudes unterstützt.Sorgen Sie für eine zuverlässige Abluft und optimalen Schutz Ihres Lüftungssystems!Entscheiden Sie sich für das Zehnder Außenwandgitter DN 100 und profitieren Sie von Langlebigkeit, einfacher Handhabung und erstklassiger Markenqualität. Für weitere Informationen oder eine persönliche Beratung stehen wir Ihnen jederzeit gerne zur Verfügung.

Regulärer Preis: 8,95 €
Doppelkanal/ Übergang ComfoFit/ Fresh CK 300 - Zehnder

Durchschnittliche Bewertung von 5 von 5 Sternen

Doppelkanal/ Übergang ComfoFit/ Fresh CK 300 - Zehnder
Variante (Erklärung unten): Übergang DN 160 (vertikal)

Zehnder ComfoFit/Fresh CK 300 – Flexibilität für Ihr LüftungssystemOptimale Luftverteilung mit den Zehnder ComfoFit/Fresh CK 300 Komponenten – Für ein gesundes und komfortables Raumklima!Die Zehnder ComfoFit/Fresh CK 300 Doppelkanal- und Übergangskomponenten bieten die ideale Lösung für die flexible und effiziente Luftführung in modernen Lüftungssystemen. Dieses umfassende Sortiment an Verbindungselementen ist speziell darauf ausgelegt, die Installation Ihrer Zehnder Lüftungsanlage zu vereinfachen und eine präzise, luftdichte Kanalverlegung zu gewährleisten. Überwinden Sie bauliche Herausforderungen spielend leicht und sichern Sie die Leistungsfähigkeit Ihres Lüftungssystems.Ihre Vorteile im Überblick:Höchste Flexibilität bei der Installation: Ermöglicht Anpassungen an unterschiedlichste bauliche Gegebenheiten durch variable Bögen und Flexelemente, von horizontalen bis zu vertikalen Umlenkungen.Sichere und dichte Verbindungen: Die integrierten oder separat erhältlichen Lippendichtungen gewährleisten eine zuverlässige Abdichtung und minimieren Luftverluste für maximale Effizienz.Modularer Systemaufbau: Eine breite Palette an Komponenten, von Doppelkanälen über Nippel bis zu speziellen Adaptern, sichert die Kompatibilität und einfache Erweiterbarkeit Ihres Lüftungssystems.Optimierte Luftführung: Speziell für die Zehnder ComfoFit/Fresh CK 300 Serie entwickelt, garantiert es eine effiziente und geräuscharme Luftverteilung im gesamten Gebäude.Einfache Handhabung und Montage: Die durchdachte Konzeption der Elemente ermöglicht eine schnelle, unkomplizierte und somit kosteneffiziente Installation.Vielseitige Doppelkanal-VerbindungenDer robuste 1,5m Doppelkanal und der Doppelkanalnippel dienen als zentrale Elemente für stabile und geradlinige Verbindungen innerhalb Ihres Lüftungssystems.Dies ermöglicht eine effiziente und sichere Verlegung der Lüftungskanäle entlang von Wänden, Böden und Decken, wobei eine präzise und optimierte Luftführung sichergestellt wird.Flexible Anpassungselemente für jede SituationDas 0,45m Flexelement sowie die verschiedenen Bögen (horizontal 45°/90°, vertikal 90°) bieten maximale Anpassungsfähigkeit an komplexe Raumstrukturen.Diese Elemente ermöglichen das Überwinden von Hindernissen, das Ausgleichen von Höhenversprüngen und die exakte Ausrichtung des Kanals, wodurch selbst anspruchsvolle Installationsumgebungen gemeistert werden.Nahtlose Adapter für SystemintegrationSpezifische Übergänge für DN 160 und DN 125 Rohre verbinden den CK300 Doppelkanal nahtlos mit anderen Standard-Lüftungsrohren, auch in vertikaler Ausführung.Dies gewährleistet eine vielseitige Integration in bestehende oder gemischte Lüftungssysteme und erweitert die Anwendungsmöglichkeiten erheblich, ohne Kompromisse bei der Luftdichtheit.Effektiver Schutz und einfache WartungDie Doppelkanalkappe dient als Verschlussdeckel, um das System vor Verschmutzungen während der Bauphase oder bei längerer Nichtbenutzung zu schützen. Zudem sind Lippendichtungen separat im 10er-Pack erhältlich.Diese Komponenten sorgen für die Langlebigkeit und Hygiene des Lüftungssystems, indem das Eindringen von Staub und Fremdkörpern verhindert wird und eine einfache Wartung ermöglicht wird.Technische SpezifikationenParameterWertBesonderheitDoppelkanal Länge1,5 mFür Hauptverbindungen und gerade StreckenFlexelement Länge0,45 mErmöglicht flexible Bögen (bis 45°) und HöhenversprüngeHorizontaler Bogen90° und 45°Präzise und sanfte Richtungsänderung im horizontalen BereichVertikaler Bogen90°Für vertikale Umlenkungen im SystemÜbergang RohrDN 160Adapter für Standard-Lüftungsrohre, auch vertikal (90°)Übergang RohrDN 125Adapter für kleinere Standard-LüftungsrohreLippendichtungenInklusive (variiert pro Komponente), auch als 10er-Pack erhältlichWichtig für luftdichte und sichere VerbindungenEinsatzbereiche & AnwendungsszenarienDie Zehnder ComfoFit/Fresh CK 300 Komponenten sind die ideale Wahl für eine breite Palette von Lüftungsprojekten.Perfekt geeignet für die Installation von zentralen Lüftungsanlagen in Neubauten und bei der Sanierung bestehender Gebäude, insbesondere in privaten Wohnungen und Einfamilienhäusern.Darüber hinaus sind sie ideal für Räume mit komplexen Decken- oder Wandstrukturen, wo flexible Kanalverläufe und präzise Anpassungen erforderlich sind, sowie für die nahtlose Integration in bestehende Lüftungssysteme durch vielseitige Adapter.Hersteller & QualitätAls Teil des renommierten Zehnder Systems stehen die ComfoFit/Fresh CK 300 Komponenten für höchste Qualitätsstandards und innovative Schweizer Ingenieurskunst. Zehnder ist bekannt für seine langlebigen, leistungsstarken und energieeffizienten Lösungen im Bereich der Komfortlüftung, die für ein optimales Raumklima sorgen.Investieren Sie in die Langlebigkeit und Effizienz Ihres Lüftungssystems mit den Zehnder ComfoFit/Fresh CK 300 Komponenten!Sichern Sie sich jetzt die passenden Elemente für eine professionelle und flexible Installation. Unser Expertenteam steht Ihnen gerne für eine individuelle Beratung zur Verfügung, um die perfekte Lösung für Ihr Projekt zu finden.

Varianten ab 8,95 €
Regulärer Preis: 58,95 €
Loading…
Loading the web debug toolbar…
Attempt #